Open City Theater
In Greenpoint, Brooklyn
Architectural Technology IV:
![]()
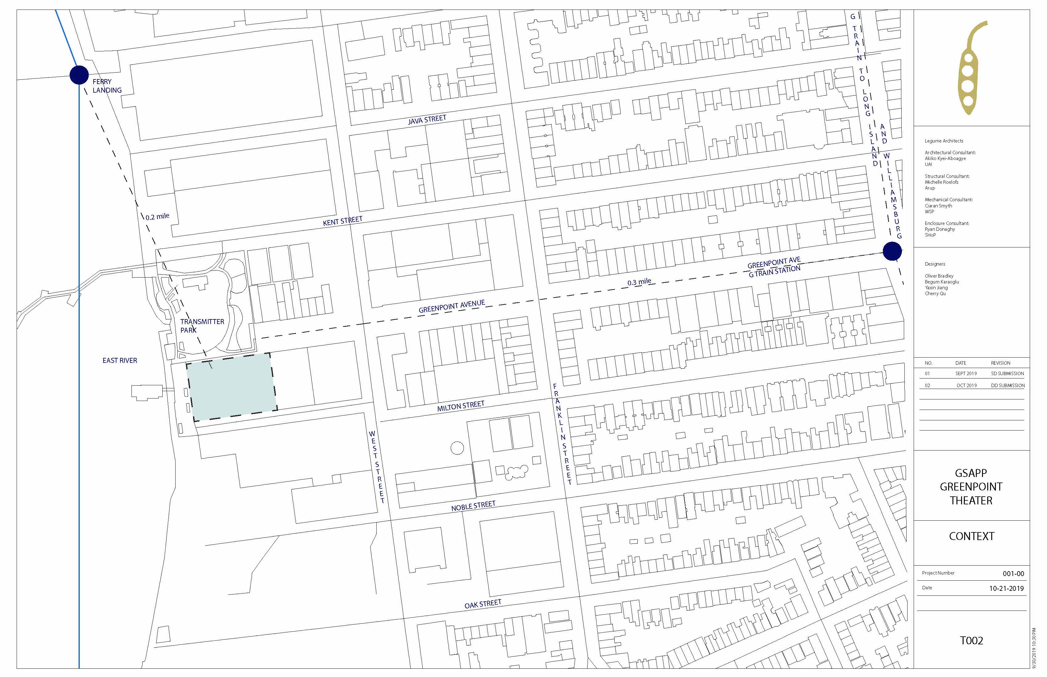
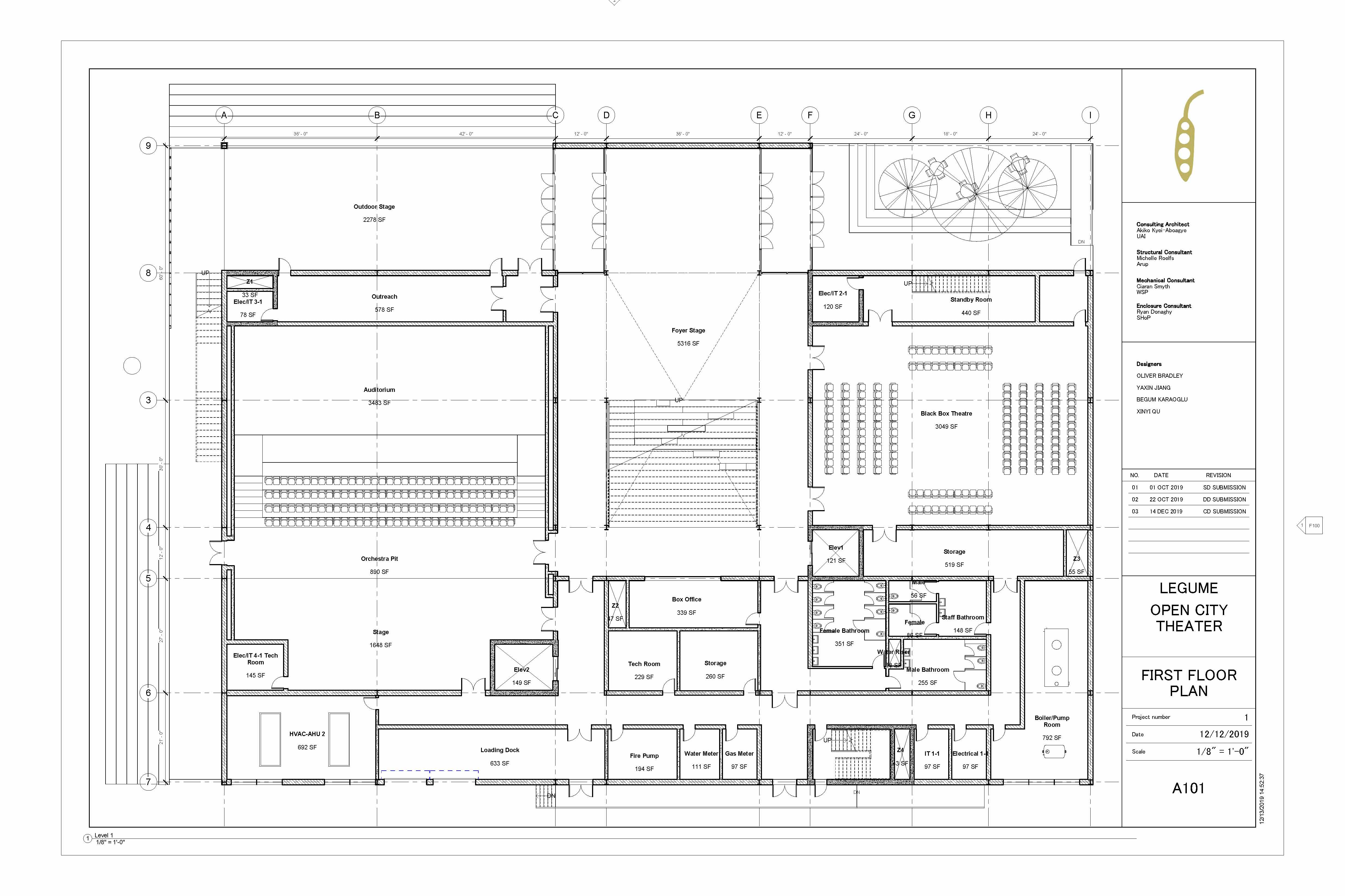
A theater along the East River aims to merge the park and the city into the theater, through an experiential outdoor staircase along the periphery of the building. With a tripartite system of building parts, material, structural, mechanical and architectural strategies are developed simultaneously to allow for an energy efficient and a more sustainable building. This course allows students to develop a project in Revit from Schematic Design to Design Development to Construction Documents in dialogue with a team of professional consultants.
In Greenpoint, Brooklyn
Architectural Technology IV:
Building Systems Integration- GSAPP Fall 2019
BIM Course
Collaboration With: Cherry Qu, Yaxin Xiang, Oliver Bradley
Critics and Consultants:
Architectural: Akiko Kyei-Aboagye, UAI
Structural: Michelle Roelfs, ARUP
MEP: Ciaran Smyth, WSP
Enclosure: Ryan Donaghy, SHoP

A theater along the East River aims to merge the park and the city into the theater, through an experiential outdoor staircase along the periphery of the building. With a tripartite system of building parts, material, structural, mechanical and architectural strategies are developed simultaneously to allow for an energy efficient and a more sustainable building. This course allows students to develop a project in Revit from Schematic Design to Design Development to Construction Documents in dialogue with a team of professional consultants.


Concept diagram of tripartite system of parts which allows not only for the allocation of programs, but also is a way to define sustainability strategies, MEP zones and facade treatments.


Unfolded elevation of interior/exterior conditions. The louvred outdoor staircase brings the public from the park along the periphery to the rooftop of the theatre.

